246 Teller DRLockhart, TX 78644




Mortgage Calculator
Monthly Payment (Est.)
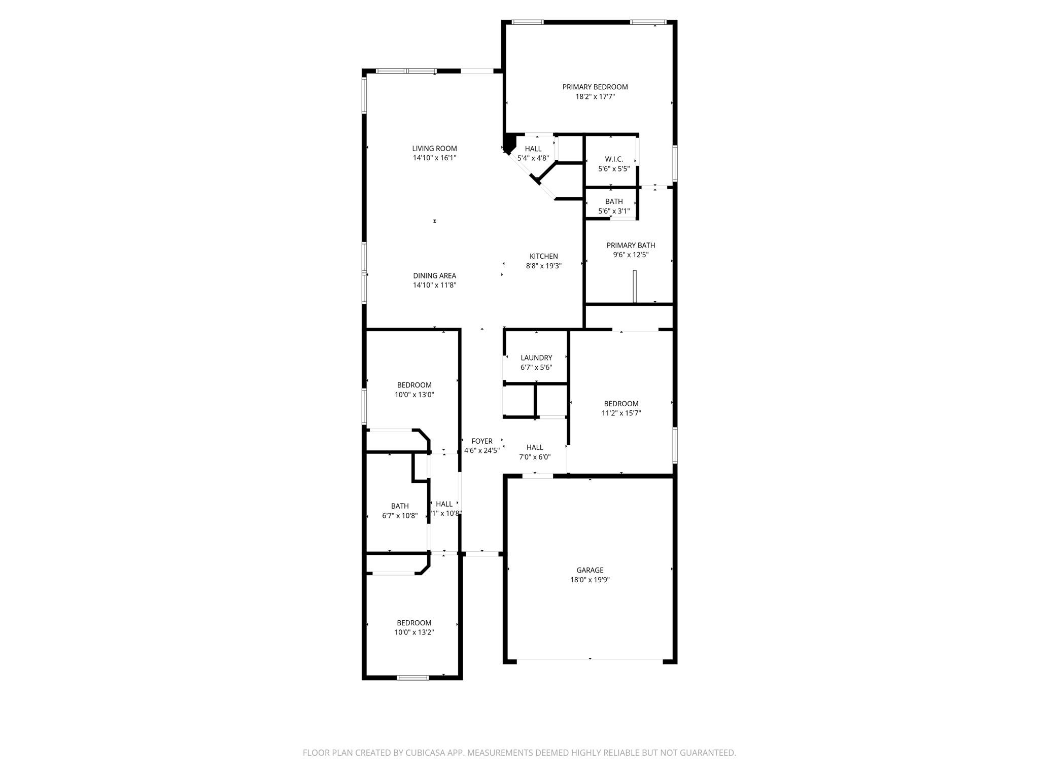
$1,382Welcome to this great single-story home featuring tall ceilings, and tile flooring throughout. The secondary bathroom includes a quartz-style vanity, walk-in tiled shower, and nearby linen storage with multiple shelves. Additional storage is found in the coat closet, main hallway closet, and a well-designed laundry room with built-in shelving and electric dryer setup. The spacious, open-concept living and dining areas showcase tall windows with blinds, modern lighting, and wiring for surround sound. The kitchen features stainless steel Whirlpool appliances, a gas stove, double sink with disposal, tall cabinetry, granite-style counters, and a stylish subway tile backsplash. The primary suite includes a large walk-in closet, double windows, and a luxurious bath with a deep soaking tub, tiled walk-in shower, dual-sink vanity, drawers for storage, and a medicine cabinet. Outside, the backyard offers a fenced area that could serve as a dog run, along with an extended covered patio—perfect for relaxing or entertaining. Both side yards provide additional outdoor space. A two-car garage completes the property, equipped with an electric opener, water softener, gas water heater, and attic access. This home combines modern finishes, smart layout, plentiful storage, and low-maintenance living—all in a comfortable single-level design.
| 2 weeks ago | Listing first seen on site | |
| 2 weeks ago | Listing updated with changes from the MLS® |
All information provided is deemed reliable but is not guaranteed and should be independently verified. Listings courtesy of ACTRIS as distributed by MLS GRID. The Austin Board of REALTORS®, ACTRIS and their affiliates provide the MLS and all content therein "AS IS" and without any warranty, express or implied.
Last checked - 2025-11-28 09:21 AM CST
REQUIRED DMCA NOTICE Member Participant’s IDX site must comply with The Digital Millennium Copyright Act of 1998 by including appropriate notification instructions to users. A Vendor or Member Participant that receives a DMCA notice of infringement must immediately (no later than 24 hours after receipt) notify MLS GRID at DMCAnotice@MLSGrid.com. A Member Participant’s IDX site must include the conspicuous display of the following two paragraphs: The Digital Millennium Copyright Act of 1998, 17 U.S.C. § 512 (the “DMCA”) provides recourse for copyright owners who believe that material appearing on the Internet infringes their rights under U.S. copyright law. If you believe in good faith that any content or material made available in connection with our website or services infringes your copyright, you (or your agent) may send us a notice requesting that the content or material be removed, or access to it blocked. Notices must be sent in writing by email to DMCAnotice@MLSGrid.com. “The DMCA requires that your notice of alleged copyright infringement include the following information: (1) description of the copyrighted work that is the subject of claimed infringement; (2) description of the alleged infringing content and information sufficient to permit us to locate the content; (3) contact information for you, including your address, telephone number and email address; (4) a statement by you that you have a good faith belief that the content in the manner complained of is not authorized by the copyright owner, or its agent, or by the operation of any law; (5) a statement by you, signed under penalty of perjury, that the information in the notification is accurate and that you have the authority to enforce the copyrights that are claimed to be infringed; and (6) a physical or electronic signature of the copyright owner or a person authorized to act on the copyright owner’s behalf. Failure to include all of the above information may result in the delay of the processing of your complaint.
Did you know? You can invite friends and family to your search. They can join your search, rate and discuss listings with you.